2193 WILFERSDORF, NEUSTIFTGASSE 3
Die Gemeinde
Zum Verkauf gelangt eine moderne Doppelhaushälfte der Firma ELK Fertighaus in schöner Siedlungslage von Wilfersdorf. Die Firma Elk Fertighaus als einer der Marktführer der Fertighauserrichter bietet Qualität und modernes Wohnen für anspruchsvolle Kunden. Durchdachte Grundrisskonzepte bilden die Basis für hochwertigen Wohnkomfort.
Dieses exklusive Haus befindet sich in der Planungsphase, somit ist es dem Käufer möglich seine Ideen und Wünsche einzubringen.
R A U M A U F T E I L U N G:
Erdgeschoß:
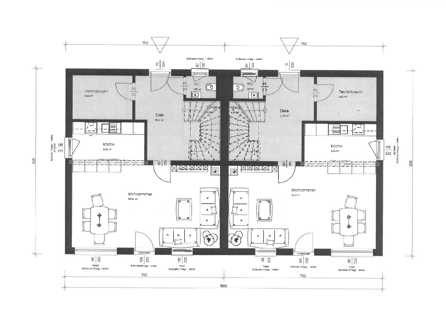
Das Entree: ein zentrales Vorzimmer
große moderne Küche mit offenem Wohn/Essbereich und direktem Ausgang auf die Terrasse und in den Garten
Toilette mit Handwaschbecken und Fenster
Technikraum / Abstellraum
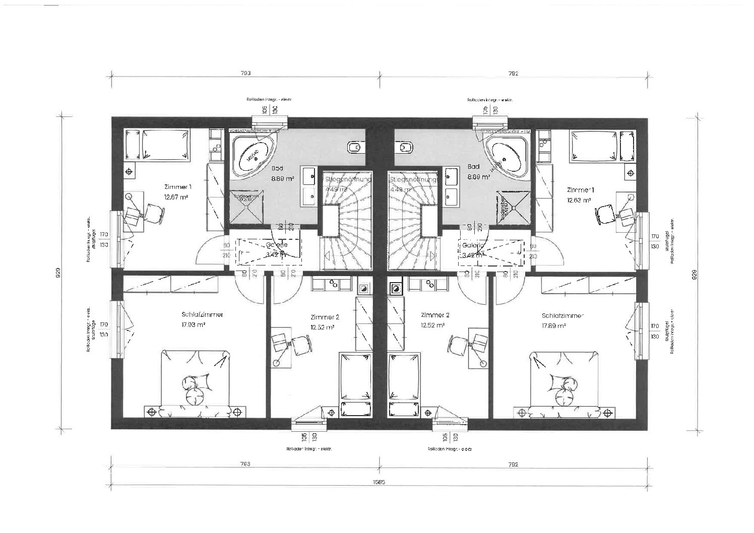
über eine schöne Holztreppe gelangen Sie in die nächste Ebene :
ein großzügiges Schlafzimmer
zwei Kinderzimmer
schönes geräumiges Badezimmer mit Toilette
Das Haus wird in belagsfertigem Zustand übergeben und auf einer Bodenplatte errichtet, Keller sowie Schlüsselfertigstellung gegen Aufpreis möglich.
A U S S T A T T U N G:
Fenster: 3-fach isolierverglast, elektrische Rollläden, Heizform: Luftwasserwärmepumpe mit Fußbodenheizung HWB-35, Vollwärmeschutzfassade
Die schöne Siedlungslage bietet Sport -u. Freizeitmöglichkeiten direkt vor der Haustüre. Kindergärten, Schulen finden sie in näherer Umgebung. Sämtliche Geschäfte und Einrichtungen des täglichen Bedarfs sind gut erreichbar.
Kaufpreis: € 400.000,– inklusive Aufschließungskosten
Wilfersdorf im Weinviertel verbindet idyllisches Landleben mit perfekter Nähe zur Großstadt. Über die A5 ist Wien in nur rund 30 Minuten erreichbar. Das traditionsreiche Schloss der Fürsten Liechtenstein, malerische Kellergassen und sanfte Weinberge prägen die lebenswerte Umgebung. Mit bester Infrastruktur, hohem Freizeitwert und guter Verkehrsanbindung ist Wilfersdorf ein attraktiver Standort für modernes Wohnen.
Überzeugen Sie sich bei einem gemeinsamen Termin von den Vorzügen dieses schönen Objektes !
Unter 0699 – 10031012 ist Herr Ryba gerne für Sie erreichbar !