2100 KORNEUBURG, JOCHINGERGASSE 17

Die Gemeinde

Rarität ! Diese stilvolle Altbauvilla wurde 1914 erbaut und ab 2024/2025 einer umfassenden großflächigen Sanierung unterzogen. Beginnend mit dem Austausch der Bodenplatte, Sanierung aller Kellerwände innen und teilweise außen, sowie dem Einbau einer Fußbodenheizung in allen Ebenen. Zusätzlich wurden sämtliche Leitungen – Elektroinstallation und Sanitärinstallationen, Heizung, Gas und Wasser erneuert, der Kamin neu unterfangen und isoliert, Räume verändert, Fenster getauscht ( Holz/Alu ), Heizung ( Gas )  erneuert. Lediglich das Dach und Teile der Fassade sowie wenige Räume sind noch nicht fertiggestellt. Mit sehr viel Geschmack und viel Liebe zum Detail, von den derzeitigen Eigentümern geplant, entstand dieser Wohntraum. Die perfekte Raumaufteilung und die Großzügigkeit der Räume verspricht Wohngefühl auf höchstem Niveau.

R A U M A U F T E I L U N G:

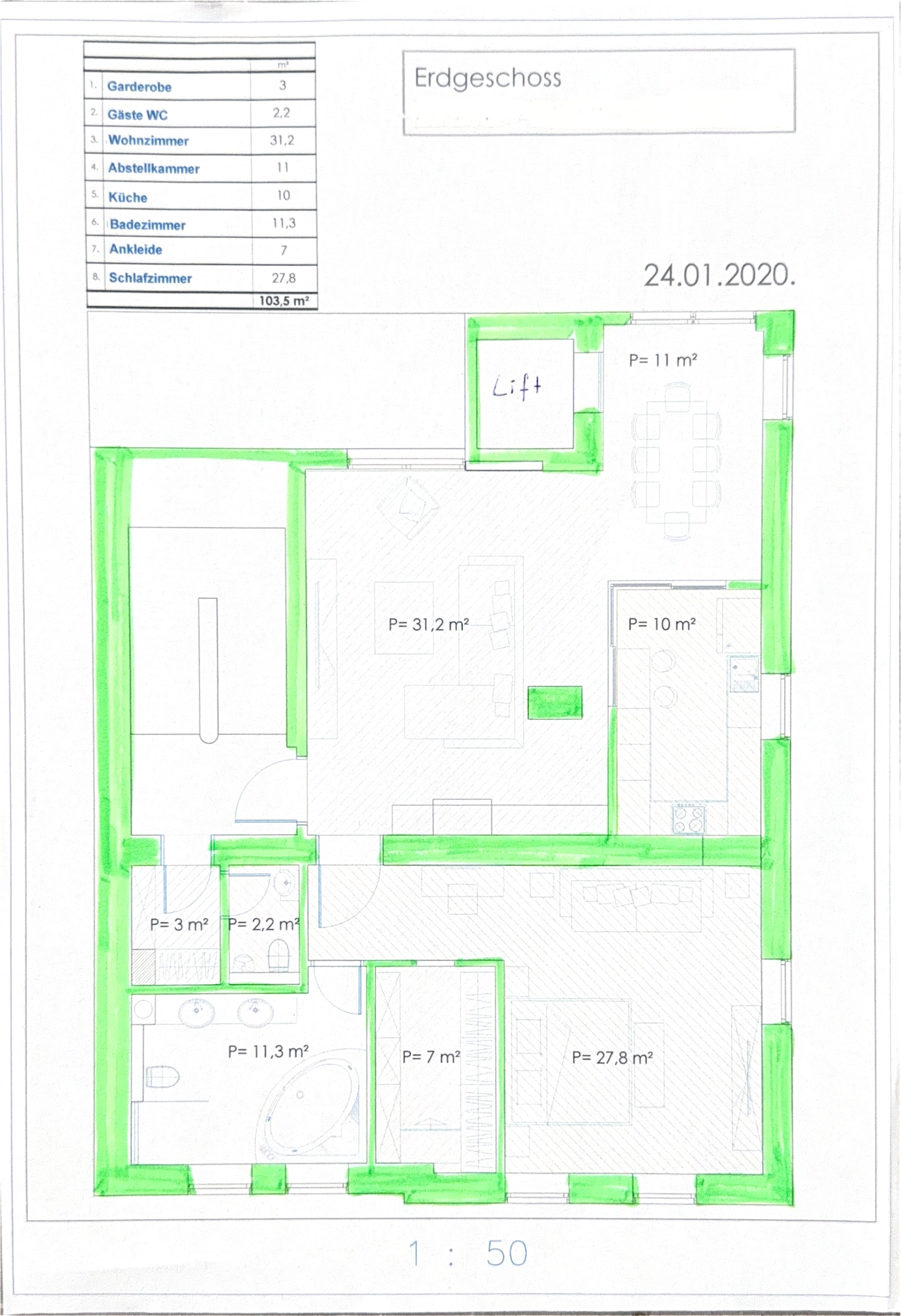
Erdgeschoss:

Das Entree:  über eine gemeiselte Treppe gelangen sie zur Garderobe
großzügige moderne Küche mit offenem Essbereich im eleganten Wohnsalon im gehobenen Stil, repräsentativ und ein gemütlicher Treffpunkt für die ganze Familie, Kamin möglich, barrierefreier Zugang über den eingebauten Lift 
Toilette
Masterbedroom mit angrenzendem Schrankraum
Badezimmer  mit Anschlüssen für einen Doppelwaschtisch, Eckbadewanne und Toilette 
über eine schöne Treppe gelangen Sie in die nächste Ebene welche als Einliegerwohnung, Ordination oder Kinderbereich perfekt genutzt werden kann:

1. Einheit – 1 Wohnzimmer, Schlafzimmer, Schrankraum und WC mit Waschbecken 
2. Einheit Wohnzimmer, Schlafzimmer mit angrenzendem Schrankraum und Badezimmer mit Wanne, WC und Waschbecken  
auch diese Ebene ist mit dem Lift erreichbar, einige Räume bieten noch individuelles Gestaltungspotential im Zuge der finalen Fertigstellung

Keller: 

geräumiges Vorzimmer
riesiger edler Partyraum mit ca 52 m² – hochwertiger Boden
Toilette
Waschmaschinenanschluss
Heizraum
Abstellraum
der großzügige Keller wurde generalsaniert, die Bodenplatte getauscht, die edle Gewölbedecke mit Eisenträger verstärkt, die Massivwände großteils saniert

A U S S T A T T U N G:

Hochwertig und stilvoll: sehr geschmackvolle Fliesen, Fenster: 3-fach isolierverglast, Heizform: Gas, Fußbodenheizung allen Ebenen HWB-105, Personenlift, teilsanierte zeittypische detailreiche Fassade mit wunderschönen Ornamenten

Die sehr schöne Siedlungslage im Zentrum von Korneuburg zählt zu den bevorzugten Wohngegenden. Der nahe Golfclub, der Bisamberg und die Au bieten Sport -u. Freizeitmöglichkeiten direkt vor der Haustüre. Kindergärten, Schulen finden sie in näherer Umgebung. Sämtliche Geschäfte und Einrichtungen des täglichen Bedarfs sind gut erreichbar. Die gute Verkehrsanbindung ( A22, Bus, Schnellbahn,) bringt sie rasch nach Wien.

Kaufpreis: € 1.150.000,–

Auf Anfrage kann ein angrenzendes Grundstück dazu gekauft werden – ca 318 m²

Alle Angaben erfolgen auf Grundlage der uns vom Verkäufer zur Verfügung gestellten Informationen und Unterlagen und sind ohne Gewähr. Für die Richtigkeit, Vollständigkeit und Aktualität dieser Angaben wird keine Haftung übernommen.

Überzeugen Sie sich bei einer gemeinsamen Besichtigung von den Vorzügen dieses schönen Objektes ! 

Unter 0699 – 19034538 ist Frau Ryba jederzeit gerne für Sie erreichbar !

Galerie

Downloads

Lage