2100 KORNEUBURG, DOKTOR-RUDOLF-FINZ-STRASSE 7
Die Gemeinde
Zum Verkauf gelangt ein modernes Einfamilienhaus der Firma ELK Fertighaus in schöner Siedlungslage von Korneuburg !
Dieses exklusive Einfamilienhaus mit 131 m² Wohnfläche befindet sich in der Planungsphase, somit ist es dem Käufer möglich seine Ideen und Wünsche einzubringen. Das vorgeschlagene Konzept bzw die Raumaufteilung orientiert sich an häufig gewünschten großzügigen Grundrissen, die einen optimalen Wohnkomfort bieten.
R A U M A U F T E I L U N G:
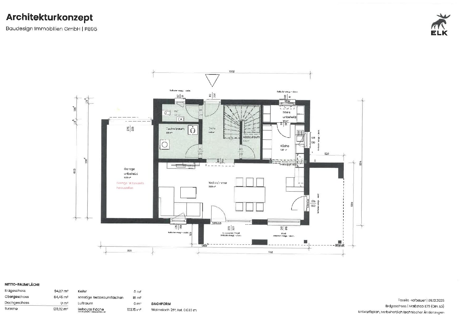
Erdgeschoß:
Das Entree: ein großzügiges zentrales Vorzimmer
große moderne Küche mit offenem Wohn/Essbereich und direktem Ausgang auf die Terrasse und in den Garten
an die Küche angrenzende Speis
Toilette mit Fenster
Technikraum
Abstellraum
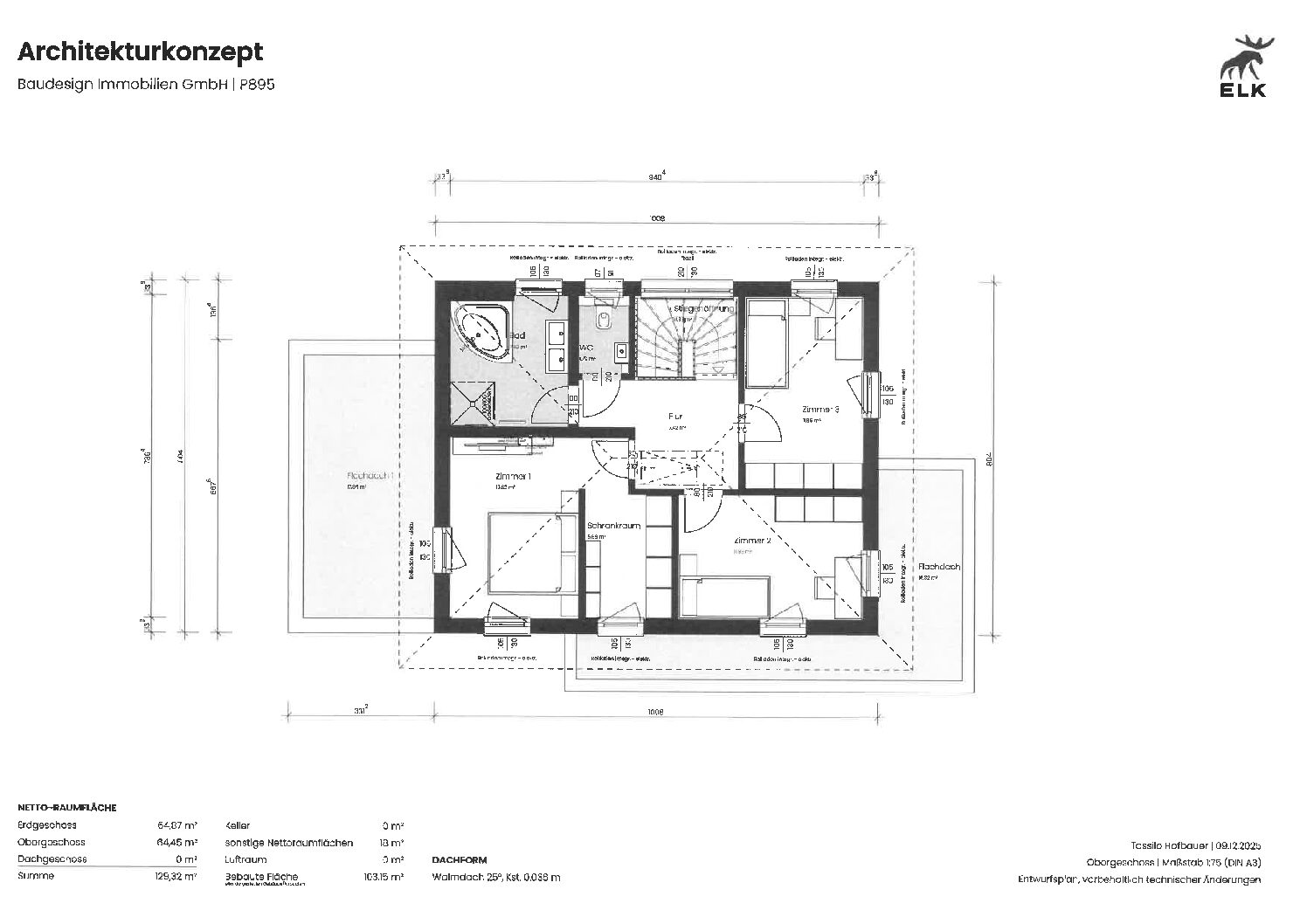
über eine schöne Treppe gelangen Sie in die nächste Ebene :
ein großzügiges Schlafzimmer mit angrenzendem Schrankraum
zwei geräumige Kinderzimmer
schönes modernes Badezimmer
getrennte Toilette mit Handwaschbecken
Das Haus wird in belagsfertigem Zustand übergeben und auf einer Bodenplatte errichtet, Keller sowie Schlüsselfertigstellung gegen Aufpreis möglich. Es besteht weiters die Möglichkeit ein größeres Grundstück zu wählen – siehe Preisblatt Top 1.
A U S S T A T T U N G:
Fenster: 3-fach isolierverglast, elektrische Rollläden, Heizform: Luft-Wasser-Wärmepumpe mit Fußbodenheizung, HWB-35, Vollwärmeschutzfassade, Garage 6×3 Meter und zusätzlicher PKW-Stellplatz
Die schöne Siedlungslage bietet Sport -u. Freizeitmöglichkeiten direkt vor der Haustüre. Kindergärten, Schulen finden sie in näherer Umgebung. Sämtliche Geschäfte und Einrichtungen des täglichen Bedarfs sind gut erreichbar.
Kaufpreis: € 786.000,–
Überzeugen Sie sich bei einem gemeinsamen Termin von den Vorzügen dieses schönen Objektes !
Unter 0699 – 10031012 ist Herr Ryba gerne für Sie erreichbar !